x
≡ Menu
O firmie Projekty Kontakt

Drewniany dom z sauną na parterze 209 m2

video
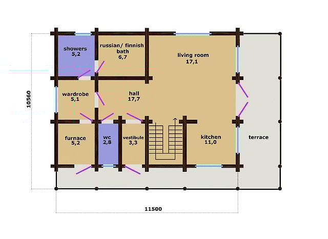
Drewniany dom z sauną na parterze 209 m2  Unikatowy projekt drewnianego domu z sauną na parterze wyróżnia się kilkoma szczegółami. Po-pierwsze to złożony i oryginalny kształt dachu z nawiasem nad tarasem. Po-drugie oszklona duża powierzchnia daje dużo światła. Po-trzecie duża powierzchnia tarasu i balkonu.

Dom zaprojektowany dla letniego wypoczynku. Jakość drewna sztucznie suszonego oraz jakość budowy całego domu gwarantuje pełne bezpieczeństwo dla wszystkich korzystających z sauny i całego budynku. Natomiast idealne skomponowanie pokojów sypialnych na piętrze dalej sauny, kuchni, pokoju gościnnego na parterze, nadaje praktyczność całemu domu i służy do dobrego wypoczynku dla gospodarza i jego gości.

Dom Drewniany
Ilość pokoi4
Powierzchnia mieszkalna76,33 m2
Powierzchnia zabudowy209,51 m2
Powierzchnia parteru73,96 m2
Powierzchnia pierwszego piętra93,8 m2
Ilość pięter2
Kubatura92,32 m3
Materiały ścienne, inne opcjeOkrąglaków naturalnych D240 wilgotności
Cena za kompletSprawdź u naszych dealerów w Polska


3D panorama Drewniany (lewy przycisk myszy w nowym oknie / karcie otworzy plik flash, można włączyć w domu myszy przez każdą stronę)



Drewniany dom z sauną na parterze 209 m2

Drewniany dom z sauną na parterze 209 m2

Pierwszy plan piętra
Drewniany dom z sauną na parterze 209 m2

Drugi plan piętra
Drewniany dom z sauną na parterze 209 m2

Drewniany dom z sauną na parterze 209 m2

Drewniany dom z sauną na parterze 209 m2

Drewniany dom z sauną na parterze 209 m2

Drewniany dom z sauną na parterze 209 m2 Drewniany dom z sauną na parterze 209 m2

1. Najlepsze projekty domów drewnianych można znaleźć tutaj.

2. Więcej projektów można znaleźć na rosyjskiej wersji naszej strony internetowej.

3. Zobacz jeden z naszych najlepszych projektów domów.

4. Zobacz naszą stronę internetową w języku niemieckim.

5. Ceny możesz zobaczyć tutaj.

6. Inspirowani przez nasze domy drewniane!





Jeśli chcesz kupić drewniany dom z sauną na parterze 209 m2 , możesz:
Połączenie:



Więcej z sekcji Projekty domów drewnianych 200-400m²

    Piętrowy dom z okrągłych bali z powierzchnią zabudowy 234,97 m2 i powierzchnię mieszkalną 131,29 m2 , ma sześć pokoi i niedużą pomarańczarnię. Duże okna mansardowe daje więcej światła, a dwa kominy wewnątrz, nie tylko nadają estetyczny wygląd ale ...
      Drewniany dom "Terem" jednokondygnacyjny dom z sauną klejone belki 200 m2 cena na żądanie domokomplekta Drewniany dom Terem-piętrowy dom z sauną klejone belki 200 m2 cena na życzenie domokomplekta drewniany dom "Terem" jednopiętrowym domu z sauną ...
        Drewniany dworek przeznaczony na odpoczynek dla całej rodziny. Na parterze budynku oprócz przestronnego salonu i kuchni z jadalnią jest pokój, sauna dla dwóch lub trzech osób i łazienka. Na drugim piętrze mieszczą się ...
          Ten piętrowy dom ma sześć pokoi i taras który pomieści nie tylko rodzinę gospodarza ale i jego gości. Powierzchnia mieszkalna ma 110 m2, powierzchnia zabudowy 215 m2. Powierzchnia parteru ma 117 m2, pierwsze piętro – 98,6 m2, kubatura ...
            Materiał (możliwy jest wybór według żądanie klienta) – okrągłe bale naturalnej wilgotności 12% o średnicy 260 mm. Dom Drewniany Ilość pokoi 6 Powierzchnia mieszkalna m2 Powierzchnia zabudowy 220 m2 Powierzchnia dachu m2 Powierzchnia parteru 134,02 ...
              Piętrowy dom z okrągłych bali o średnicy 26 cm, ma pięć pokoi. Taki dom będzie cieszyć rodzinę swoim ciepłem i przestrzenią jednak również idealnie pasuje jako dom dla wypoczynku od miejskiego hałasu. Jasne odcienie fasady wraz z ciemnymi ...
                Dom zaprojektowany do wypoczynku dla całej rodziny łączy w sobie komfort i praktyczne zastosowanie przestrzeni. Parter mieści w sobie przestrzenny pokój gościnny, kuchnię, refektarz, łazienkę oraz pomieszczenia gospodarcze i magazyn; na ...
                  Styl ten jest szczególnie popularny w regionach górskich w Europie Środkowej. Te drewniane domy są odporne na ostre wiatry górskie, temperaturę i zimno. Prosty dwuspadowy dach wytrzymuje nawet największe obciążenie śniegiem. W ...
                    Ten dom został zaprojektowany specjalnie dla naszych klientów w środkowych Włoszech. Dom znajduje się w górzystej okolicy. Wysoki parter tego domu wykonany jest z betonu. Na pierwszym piętrze znajduje się przestronny salon, kuchnia, ...
                      Projekt domu prywatnego z dużym tarasem, garażem na dwa samochody, czterema pokojami oraz piwnicą. Powierzchnia zabudowy 327,73 m2, powierzchnia mieszkalna 93,21 m2. Jasne odcienie fasady wraz z ciemnymi elementami dachu tworzą piękną kompozycję, a ...
                        Duży i solidny podmiejski dom do całorocznego zamieszkania. Projekt tego domu bazuje na kilku projektach drewnianych domów z Krajów Nordyckich. Parter mieści w sobie wiele pomieszczeń gospodarczych, oprócz kuchni, refektarza, gabinetu i pokoju ...
                          Ten projekt drewnianego budynku pod firmę, to propozycja dla osób dbających o personel i przyrodę. Ekologicznie czysty materiał, szybka budowa, komfort ciepła w zimę i chłodek w upały – to są atuty naszej propozycji. Drewniany budynek Powierzchnia ...
                          © 2025 Białoruskie Domy Drewniane
                          "VIVOS" Białoruskie Domy Drewniane 05-126 NieporętKąty Węgierskieul. Bagienna 46D
                                                                          

                          Witryna jest obsługiwana przez Nestorclub.com

                          Napisz do nas, jesteśmy online!